Novabuilds
Novabuilds
610450313075
https://www.novabuilds.com.au/
CMH1-322-1
HOME
Residential
1 Bedroom Homes
2 Bedroom Homes
3 Bedroom Homes
Commercial
Building Material Supplies
SHOP DETAILING
Display Homes
Contact Us
Residential
Home
Residential
3 Bedroom Homes
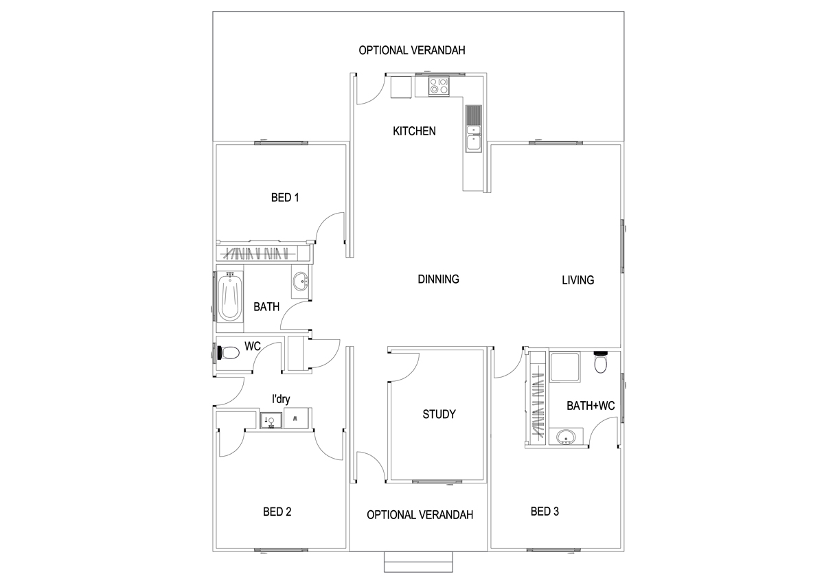
CMH1-322-1
Prev
Next
3
2
2
Dimensions: 12.0 x 14.0
Area m2: 168.0
Related posts
CMH1-322-5
3
3
3
CMH1-322-4
3
2
3
CMH1-322-3
3
2
2
CMH1-322-2
3
2
2
FEATURE DESIGN 3BEDS
3
3
3
Thông báo
×
Giỏ hàng của bạn
×