Novabuilds
Novabuilds
610450313075
https://www.novabuilds.com.au/
CMH1-211-3
HOME
Residential
1 Bedroom Homes
2 Bedroom Homes
3 Bedroom Homes
Commercial
Building Material Supplies
SHOP DETAILING
Display Homes
Contact Us
Residential
Home
Residential
2 Bedroom Homes
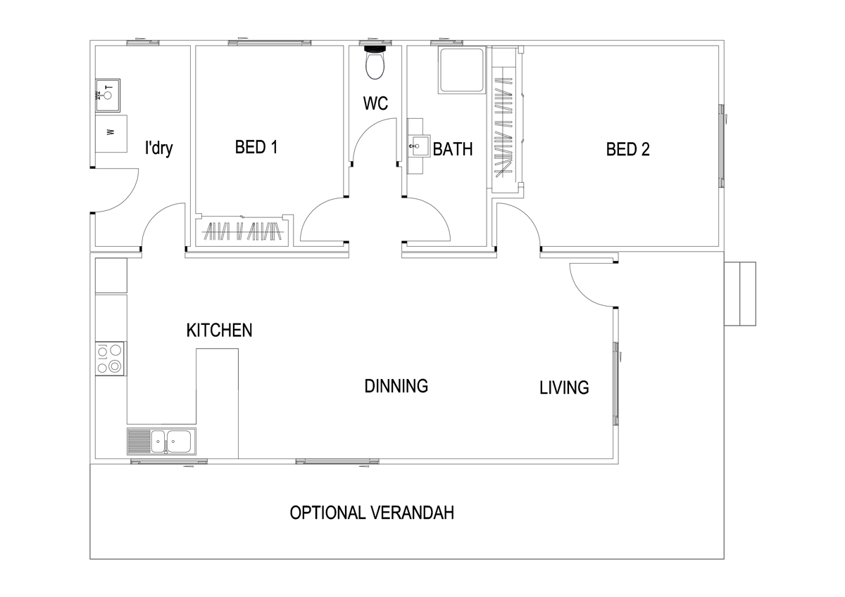
CMH1-211-3
Prev
Next
2
1
1
Dimensions: 12.0 x 8.0
Area m2: 96.0
Related posts
FEATURE DESIGN 2BEDS
2
2
2
CMH1-211-5
2
1
1
CMH1-211-4
2
1
1
CMH1-211-2
2
1
1
CMH1-211-1
2
1
1
Thông báo
×
Giỏ hàng của bạn
×